Ravak Brillant zuhanyajtók 90 cm dönthető króm fényes/átlátszó üveg 0UP7AA00Z1
Rögzítés
Termékleírás
Kiváló minőségű, kétrészes zuhanykabin-ajtó átlátszó üvegbetéttel és Ravak AntiCalc® védőbevonattal. A zuhanykabin kiegészítéséhez vásárolja meg a B-SET készletet. Fényes króm kivitel. Zsanéros nyitórendszer. Jobb oldali kivitel.
Az ár a zuhanykabinra (üvegpanelek) vonatkozik, a B SET szerelőkészlet (rögzítőelemek) nélkül, amelyet külön kell megvásárolni!
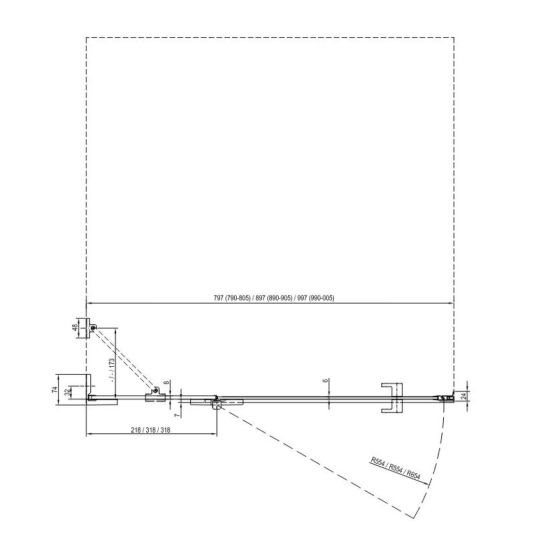
A műszaki rajzok a bal oldali ajtó változatot mutatják!
Műszaki leírás
- típus: jobb (P)
- a méret: 89-90,5 cm
- b méret: 55,4 cm
- s méret: 30,3 cm
- v méret: 52,9 cm
- termék magassága: 195 cm
- szín: B SET (zsanérok, fogantyúk, rögzítők) fényes króm kivitelben. Külön megvásárolható
- biztonsági üveg töltelék: 6/8 mm; átlátszó
-antiCalc bevonat
A termék két rögzített részből áll, amelyek közül az egyik nyitható ajtót képez. Az emelőmechanizmus az ajtót alaphelyzetben rögzíti, automatikusan bezárja, és kinyitáskor a küszöbcsík fölé emeli. A termék bal vagy jobb oldali változatát a kilincs elhelyezkedése határozza meg, kívülről nézve. Beépítés a fürdőszoba mélyedésébe vagy csempézett sarkába Ravak zuhanytálcára: Perseus Pro, Perseus Pro Flat, Perseus Pro Chrome, Gigant Pro, Gigant Pro Flat, Gigant Pro Chrome, vagy közvetlenül a padlóra beépített lineáris lefolyóval vagy lefolyó rácsával. A BSD2 zuhanyajtók készletben kerülnek forgalomba: az üvegelemek egy csomagban, a fém alkatrészek egy másik csomagban (B SET). A termék mindkét részét külön kell megrendelni (üveg + B SET).
A szilárd fém elemek és a kiváló krómozás kombinációja garantálja a lehető legmagasabb minőséget. Ennek köszönhetően a B SET összes alkatrészének nagyon hosszú élettartamát garantálhatjuk – ezt egy élettartam-teszt is megerősítette: 30 év. A termék maximális stabilitását a Brilliant üvegtartó biztosítja, amely kisebb méretű zuhanyajtókhoz is megvásárolható. A Brilliant BSD2 zuhanyajtók alkalmazkodnak az építési pontatlanságokhoz.
A termék felszerelése előtt kérjük, olvassa el a műszaki dokumentációt. Az adott termék nevében szereplő szám nem a pontos méreteket, hanem csak egy hozzávetőleges tartományt jelöl.
A zuhanykabinok gyöngyszeme
Elegancia, a részletek iránti figyelem, időtálló design. A Brilliant egy olyan hely, ahol tökéletes design veszi körül.
Zuhany az életre
A szilárd fémelemek és a tartós króm kombinációja garantálja az összes fémelem legmagasabb minőségét. A 30 éves tartóssági tesztnek köszönhetően garantálhatjuk azok hosszú élettartamát.
Száraz fürdőszoba
A zuhanykabin ajtaja semmit sem enged át. Sem belülről, sem kívülről. A zsanér emelő mechanizmusnak köszönhetően önmaguktól záródnak és tökéletesen szigetelnek.
Pillanatok alatt megtisztítható
A jól átgondolt kialakítás megkönnyíti a zuhany tisztítását. A zsanérok a zuhanykabin belsejéből az üvegbe vannak süllyesztve, ami megkönnyíti a karbantartást.
Vízkő elleni védelem
Még a legtisztább víz is hagy nyomot. Ez pedig a vízkő. Az üveget a szabadalmaztatott RAVAK AntiCalc® technológiával védjük. Ez megakadályozza a vízkő lerakódását, így még könnyebb tisztán tartani.
Könnyen beállítható kabin
A Brilliant zuhanykabinok még az egyenetlen felületekhez is alkalmazkodnak. A termék könnyen állítható, akár 12 milliméterig.
Részletek
A gyártó adatai
Kérdések és válaszok (0)
Nem talált válaszokat a kérdésre?






























